3-bedroom Villa, Pafos, Paphos, Cyprus

€595,000

  • 3
  • 3

Total Area Covered: 225 m2

Plot Area: 284 m2

REF: JM-023-PS

REF: JM-023-PS

Full Details

Ideally situated in the vibrant heart of Paphos, the Meteora Residential Development offers a sophisticated collection of villas designed to bridge the gap between urban convenience and coastal tranquility. Located in the prestigious Universal/Exo Vrysi area, these residences are just minutes away from key city landmarks, including the Kings Avenue Mall, sun-drenched beaches, and three leading universities. Whether intended as a primary family residence, a luxury holiday retreat, or a high-yield investment, these properties represent a premier choice for those seeking the ultimate Paphos lifestyle.

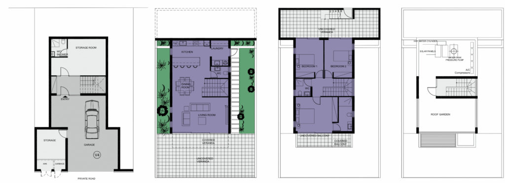
Villas V07, V08, and V09 showcase a versatile architectural layout spread across three distinct levels, optimized for both functionality and luxury. The basement level provides extensive space for storage and secure parking, while the ground floor is dedicated to social living with a spacious open-plan kitchen and living area that flows seamlessly onto a covered veranda. On the first floor, the three double bedrooms offer private retreats, each designed with laconic, stylish interiors and high-quality finishes. A crowning feature of these homes is the expansive roof garden, offering panoramic views of the surrounding cityscape and Mediterranean horizon.

Every detail in these residences reflects a commitment to quality and modern efficiency, from the European-manufactured kitchen furniture to the high-end sanitary ware and built-in wardrobes. Engineered for sustainability, each villa carries an Energy Class A rating and is equipped with a solar water heating system and full air conditioning provisions. Outdoors, the properties are designed for the Mediterranean climate, featuring dedicated barbecue areas and access to a communal swimming pool (with select units offering private pool options). With their prime location and exceptional specifications, these villas offer a rare blend of prestige and practicality in the center of Paphos.

Parking Spaces

Covered

Heating

Air Conditioning

  • Prime Location: Minutes from Kings Avenue Mall, the harbor, and top universities.
  • Energy Efficiency: Energy Class A rating with solar water heating systems.
  • Bathroom Facilities: Features a guest WC on the main living level and multiple bathrooms across the sleeping quarters.
  • Roof Garden: Spacious private roof terrace with panoramic city and sea views.
  • Modern Tech: Provisions for air conditioning and high-quality European fittings throughout.
  • Leisure Ready: Includes a private barbecue area and access to a communal swimming pool.
  • Versatile Design: Features a dedicated basement for storage and covered parking.
  • Investment Potential: Located in a high-demand rental area for both tourists and students.
  • Premium Finishes: Built with high-quality materials, stylish interiors, and spacious verandas.
Floorplan for 3-bedroom Villa, Pafos, Paphos, Cyprus

Similar Properties

  • 3
  • 3
4-bedroom Villa, Chlorakas, Paphos, Cyprus
Available
€850,000
  • 3
  • 3
4-bedroom Villa, Chlorakas, Paphos, Cyprus
Available
€895,000
  • 3
  • 3
3-bedroom Villa, Kouklia, Paphos, Cyprus
Available
€640,000

PROPERTY SEARCH