4-bedroom Villa, Souni, Limassol, Cyprus

€590,000

  • 3
  • 3

Total Area Covered: 150 m2

Plot Area: 201 m2

REF: EL-007-LL

REF: EL-007-LL

Full Details

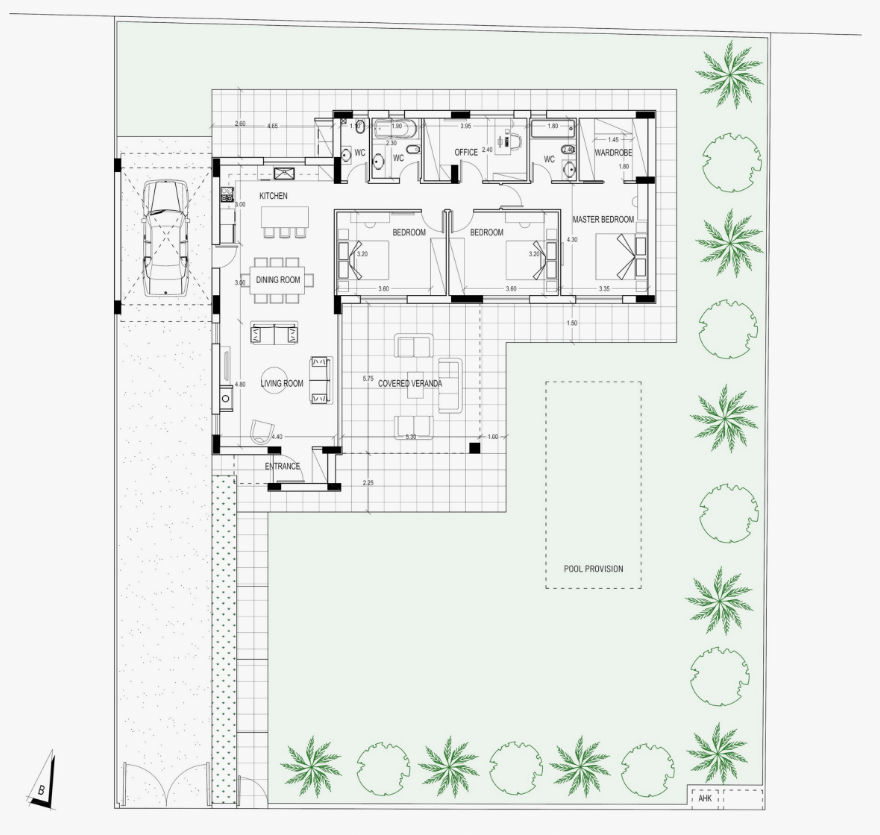
House 13 is a single-storey, Type B villa in the LEVEL Residences. It is built on a spacious Plot Area of 756 m². The house offers a total constructed area of 201 m² with an internal covered area of 150 m².

The house is configured with three bedrooms: a master bedroom and two standard bedrooms. It also includes a dedicated office space that offers the flexibility to be converted into a fourth bedroom. The total covered area of the residence is 180 m², including a covered veranda of 30 m² and a dedicated covered parking space of 21 m².

The property includes Underfloor heating and provision for an Air Conditioning System with split units. A swimming pool is an optional feature. The total number of sanitary facilities is three: two full bathrooms and one guest WC. The master bedroom is a private ensuite with its own full bathroom, and the remaining two bedrooms share the second full bathroom. A separate guest WC is provided near the living spaces.

Outside Spaces

Back Garden

Parking Spaces

Covered

Heating

Air Conditioning

Under Floor

  • Pool addition is Optional
  • Covered Veranda
  • Common Facilities such as Kids Playground
  • Nearby beautiful hiking trails
  • 30 min drive to airport
  • Nearby schools (2 min drive)
Floorplan for 4-bedroom Villa, Souni, Limassol, Cyprus

Similar Properties

  • 3
  • 3
2-bedroom Apartment, Mesa Geitonia, Limassol, Cyprus
Available
€1,070,000
  • 3
  • 3
7-bedroom House, Souni, Limassol, Cyprus
Available
€1,800,000
  • 3
  • 3
4-bedroom Penthouse, Limassol Town Centre, Limassol, Cyprus
Available
€18,000,000

PROPERTY SEARCH